
Grand Saloon
The Grand Saloon & Beauty Parlor is an upscale interior design project tailored to create a luxurious and functional space for premium grooming and beauty services. Designed for Mr. Tej Raj Khatiwada, this project emphasizes a refined ambiance that enhances the customer experience while offering a practical workspace for the staff. The design reflects sophistication, elegance, and attention to detail, ensuring the space becomes a landmark for style and relaxation.
Project Type
Interior Design
Client
Tej Raj Khatiwada
Client Address
Birtamod, Jhapa
012 March 2023
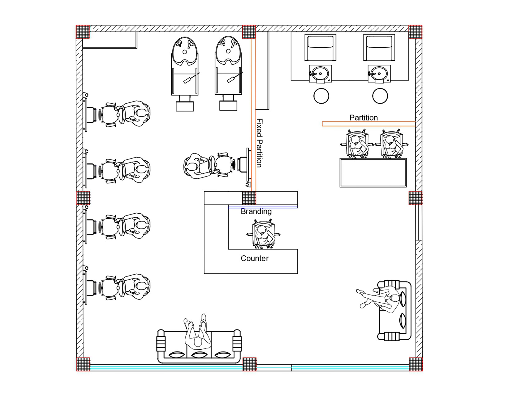
Concept and Floorplan
The design concept for The Grand Saloon & Beauty Parlor was inspired by the fusion of elegance and functionality. The layout was planned to provide a seamless customer journey, from the reception area to the treatment zones.
Key features of the floorplan include:
- A grand reception and waiting area with luxurious seating and decor.
- Distinct zones for haircuts, styling, makeup, and spa services to ensure privacy and efficiency.
- Smart storage solutions for tools and products, maintaining a clutter-free environment.
- A well-equipped staff area for smooth operations.

02March 2023
3D Visualizations
The 3D designs for The Grand Saloon & Beauty Parlor captured every detail, offering a visual preview of the elegant interiors.
Highlights include:
- Reception Area: A welcoming space with plush seating, a sleek reception desk, and accent lighting.
- Service Areas: Ergonomic and stylish workstations with modern mirrors, lighting, and seating.
- Spa Zone: A tranquil retreat with calming tones, ambient lighting, and comfortable furnishings.
- Decor: Statement wall features, lush greenery, and premium finishes to elevate the ambiance.




03May 2023
Construction
The construction phase focused on bringing the sophisticated design elements to life with precision and quality craftsmanship.
Key aspects included:
- Utilizing premium materials and finishes to create a lasting impression.
- Installing high-end furniture and fixtures to align with the luxurious theme.
- Ensuring functional layouts for both client comfort and staff efficiency.
- Regular client consultations to maintain alignment with the vision.




04Dec 2023
Unvieling & Handover
The unveiling of The Grand Saloon & Beauty Parlor showcased a space designed to impress and inspire.
Key moments included:
- A guided walkthrough highlighting the distinct zones and their design features.
- Demonstrations of the functionality of the workstations and spa area.
- Final checks to ensure the space was ready to deliver exceptional service experiences.
The project was handed over to Mr. Tej Raj Khatiwada, providing a luxurious and functional environment poised to set new standards in grooming and beauty care.
Check project Gallery






